廖萬石堂

廖萬石堂(上水門口村)
前進正脊
正立面

上水廖族先祖廖仲傑於元代(一二七一至一三六八年)中葉自褔建南遷廣東,初居屯門,旋遷深圳河以北的福田村,最後才在上水雙魚河定居,他的子孫其後散居附近一帶。

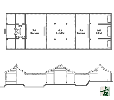
十八世紀時,廖族勢力至為顯赫,這可從他們所建的祠堂 — 廖萬石堂中印證。廖萬石堂始建於清雍正(一七二三至一七三五年)初年,並於乾隆年間(一七三六至一七九五年)重修,屬三進兩院式建築。整座建築裝飾華麗,灰塑、木刻、壁畫、泥塑等比目皆是,題材多為傳統吉祥圖案。

一九三二年,廖族為提倡教育,培育人才,將廖萬石堂改作鳳溪小學。一九七四年,鳳溪小學遷往新址。廖萬石堂於一九八四年及一九九四年進行重修。

廖萬石堂於一九八五年列為古蹟。

平面圖

上水門口村(圖則

星期一、三至日:上午9時至下午1時及下午2時至5時
星期二(公眾假期除外)、聖誕日、聖誕翌日、元旦日及農曆年初一至三休息

請搜尋交通工具及路線,以便預先計劃行程。
以上資料只供參考,如有更改,以有關機構公布作準。
返回